Um projeto singular onde
a simplicidade se destaca
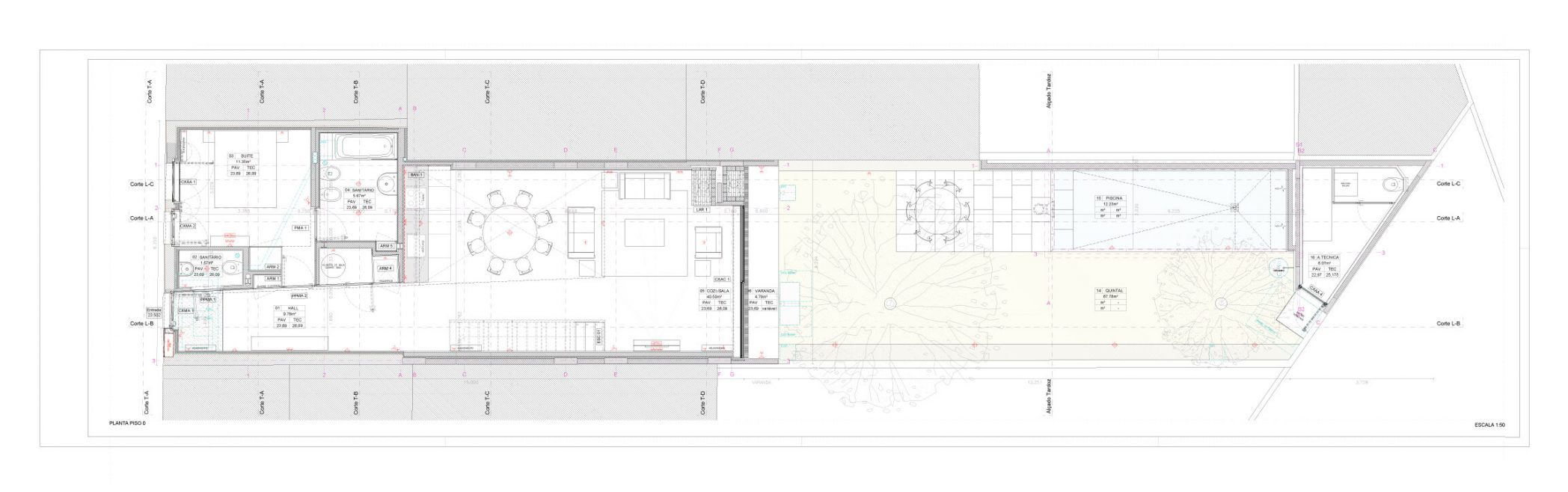
Uma casa com linhas de design moderno, elegante, projetada ao detalhe, onde a luz natural é protagonista e proporciona uma sensação de conforto única. O jardim e a piscina são o complemento perfeito de um interior pensado para ser vivido de forma descontraída e descomplicada, ao ritmo de cada um.
Perfeita para famílias
Com 4 quartos, a casa pode receber 2 casais com filhos. Mesmo no centro da Vila de Porto Côvo, a casa está a uma distância a pé das praias mais incríveis de Portugal, da rota vicentina, do mercado, e de uma série de atividades que o vão fazer querer voltar vezes sem conta.
A CASA DOS SEUS SONHOS
A nossa Casa também pode ser sua. Por um dia, por um fim-de-semana,
ou por umas férias prolongadas


































